武汉市
资讯首页 早报新闻 商业动态 国内楼市 优惠活动 看房日记 新房资讯 本地楼市 楼市焦点

城芯公园综合体|老汉口情怀+稀缺户型,焕新升级的汉口内环人居来了!

2022-04-07 17:30:50 作者:蔡蔡评楼 点击 评论

 在老汉口人的生活记忆里

总有一树梧桐
立在道路两旁
春天漫天飘絮的时候会心烦它
夏天艳阳高照的时候会躲进它
秋天满地金黄的时候会踩过它
冬天萧瑟枯枝的时候会仰望它
(图片来源于网络)

老汉口人的生活原心
以梧桐大道为半径
穿过梧桐大道
前往城市的边边角角
梧桐树下
藏着老汉口百年生活缩影
梧桐深处
近60万方的城芯公园综合体
——华发公园首府
图片
(该图片仅为项目展示效果图,具体以规划部门审批通过的规划方案为准。)


图片

城芯难得公园人居

图片 

华发公园首府
择址地质大学汉口校区源址
焕新源址梧桐景观大道
并以它为主轴
串联项目内住宅、商业与园林
唤醒老汉口人儿时生活记忆
图片
(图片来源于网络)

此外,华发公园首府
以围合式布局营造建筑的错落有致
在行列式单一建筑布局
和低矮老旧的老城小区中
形成一道独特靓丽的人居风景线
这样的围合式设计
最大限度拓宽了楼间距
让居住视野更为开阔
图片
(该图片仅为项目展示效果图,具体以规划部门审批通过的规划方案为准。)

项目自建约2万方的私享园林
也被环纳其中
形成“家家有景、户户赏园”
的公园人居景观
放眼整个汉口内环都极为少见
图片
(该图片仅为项目展示效果图,具体以规划部门审批通过的规划方案为准。)


图片

内环稀缺三房户型

图片

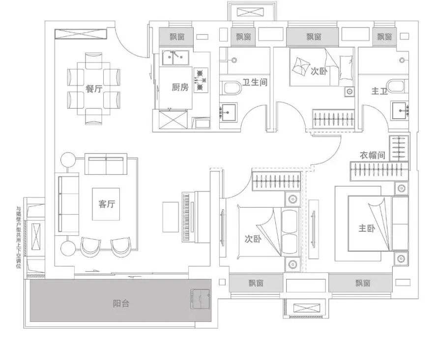
回到户型产品本身
华发公园首府产品面积段为
约98~173平的三房、四房户型
此次,蔡蔡实地去看了
约119平的三房户型
图片
(约119平户型效果图。该图片仅为项目展示效果图,具体以规划部门审批通过的规划方案为准。)

首先,这个面积段
在汉口内环核心区域
已经是极为稀缺的户型
其次,华发公园首府在这个户型上
做到了约5.1m的大开间宽厅
约5.5m的大景观阳台
而众所周知,这样的配置
大多是在约130平+的户型才会有的
图片
(约119平样板间实景图)
三房两厅两卫的空间构成
南北通透的采光格局
无论是二人世界
还是三口之家
都可以轻松享受惬意生活
全面升级大汉口内环人居品质
图片
(约119平样板间实景图)

同时,华发摒弃
“千家一面”的精装模版
以毛坯交付
让业主可以自由选择
家装风格与设计
打造更符合业主个人心意的
温馨居所

而即将开放样板间的
约143平四房户型
则是一个纯改善高品质全龄户型
四房两厅两卫双阳台的设计
整体格局方正,南北通透
阳台面宽达到近7米标准
同等配置的其他内环人居
基本很难做到这样
图片
(约143平样板间实景图)

动静分区的合理布局
也让主卧的私密性大大增加
客餐厅一体式结构
加上大玻璃窗户
整个户型采光和通风效果
都更为舒适
图片
(约143平样板间实景图)

4房的配置也让户型更具灵活可变性
业主可以根据自己的需求
灵活打造成孩子的玩耍区、
大人的工作区、
老人的休闲区......
每一位家庭成员的喜好
都能得到照顾
图片

图片
(约143平样板间实景图)


图片

蔡蔡点评

图片

汉口内环已经很久没有新房了
更少有这么大体量的城芯综合体
在武汉内环土地供应
越来越少的大背景下
核心地段+全能配套的小区
只会越来越稀缺
而房价也只会越来越水涨船高
华发公园首府即将开盘
欢迎大家前去了解更多项目详情

备注:未经原作者许可,禁止转载 
用微信扫一扫,分享至好友和朋友圈

热文排行

热门楼盘